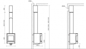
STUV 30-up

Nominaalvõimsus 5-9kw

Kasutegur 81%(suletud klaasi korral)

1,3-2,4 kg/h 

Puude maksimaalne pikkus 33cm

 





Loading...